N-RE

Guideline For Construction And Operation

Modules: Frame

Release

2.0.3

2009-08-06

Rules:

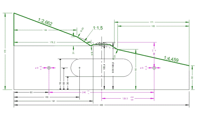
  1. Three different profiles ("head shapes") can be chosen for both single-track and double-track lines, and a fourth with limitations (because of different location of the holes).
  2. Two holes with 8 (-0/+2) mm diameter act as a connection between the modules; they are located 58 mm below the rail's head, 120 mm right and left of the middle of the track.
  3. No fixtures on or near the inside of the profile to give room for c-clamps.

Recommendations:

  1. The flat profile is the standard.
  2. Because of the different location of the connecting holes, the profile "Embankment" should be at first used with a couple of adaptor modules.
  3. For a consistent appearance, all modules should have a width of 400 mm. Stations which need more room can be wider, but should narrow to the end to 400 mm. (see also "best practices".)
  4. The exterior color of the frame should be a matt gray (to prefer "dust gray RAL 7037").

Best practices

Width of the module
If somebody – especially on route modules – wants to save width, chose 300 mm; on the one hand, because to be worthwhile, on the other hand, because narrower modules cannot be bolt the standard way.
Double-track modules
get, advantageously, two additional couples of holes in the end faces, symmetrically to both tracks. Such modules can be bolt with single track modules, although that looks seldom good.
They have (unlike the drawings) a width of 425 mm, because, if combined suchlike, at least one of the longitudinal edges is align.

F1: Flat single track profile, similarly to FREMO "N90"


Flachprofil eingleisig

F2: Flat double track profile, similarly to FREMO "N90"


Flach zweigleisig

H1: Slope single track profile


Hangprofil eingleisig

H2: Slope double track profile


Hangprofil zweigleisig

E1: Cut single track profile


Einschnitt eingleisig

E2: Cut double track profile


Einschitt zweigleisig

D1: Embankment single track profile

(Limited usage; Location of the holes!)

Damm eingleisig

D2: Embankment double track profile

(Limited usage; Location of the holes!)

Damm zweigleisig


Advices:

The making of the basic construction - the frame - must be done very accurate: Head and side parts have to be assembled on a plain surface, in order that the frame becomes straight. The plank for the track must be mounted absolutely plain, to get the ideal position of the track. The plank must be reinforced with a beam to prevent long term distortion. The frame gets additional strength by transversal ribs.
During the work with the wooden parts you should consider the cables to install and should see to the necessary openings. Also, space and openings for the junction's mechanism should be left free by now. It is also recommendable to see to the fitting of the legs by now. There must be enough space provided for the connecting bolts at the ends of the module.
High quality ply wood or cross-banded lumber veneered board (CLV), not below 10 mm thickness, is suitable for the building material. Beyond repair is chipboard and suchlike.
After the assembling all wooden parts should be painted inside and outside, to protect the wood from getting wet (and by this from distortion). A light colored inside helps during an error detection if the module is already placed in a layout, because cables and parts of the mechanic are better visible.
The boreholes for the bolts at the profiles should be installed not until the tracks are mounted, because they fit better that way. Also, openings for cables to the next module should be installed as shown in the drawings. This openings can be used as grip holes when carrying.


WINCOR NIXDORF International GmbH
Sitz der Gesellschaft: Paderborn
Registergericht Paderborn HRB 3507
Geschäftsführer: Eckard Heidloff (Vorsitzender), Stefan Auerbach, Dr. Jürgen Wunram
Vorsitzender des Aufsichtsrats: Karl-Heinz Stiller
Steuernummer: 339/5884/0020 - Ust-ID Nr.: DE812927716 - WEEE-Reg.-Nr. DE44477193

Diese E-Mail enthält vertrauliche Informationen. Wenn Sie nicht der richtige Adressat sind oder diese E-Mail irrtümlich erhalten haben, informieren Sie bitte sofort den Absender und vernichten Sie diese E-Mail. Das unerlaubte Kopieren sowie die unbefugte Weitergabe dieser E-Mail ist nicht gestattet.

This e-mail may contain confidential information. If you are not the intended recipient (or have received this e-mail in error) please notify the sender immediately and destroy this e-mail. Any unauthorised copying, disclosure or distribution of the material in this e-mail is strictly forbidden.